济南宇航电子元件生产有限公司

ELEVATOR DOOR SYSTEM电梯门系统

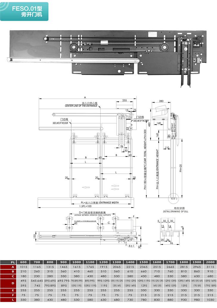
FESO.01型旁开门机